4 Bedroom Maisonette House Plans
ELegant 4 Bedroom House Plan
ELegant 4 Bedroom House Plan
When elegance meets budget friendly, what you get is the Elegant 4 Bedroom House Plan. This design hits the right spot for most people who want to build a home they can be proud of without robbing the bank and blowing their budget.
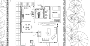
The plan comes complete with a beautiful and inviting pergola, created outside the living room terrace extending all the way from front to back.

Outside the kitchen, you will find a utility/dhobi area with a concrete counter fitted with a sink, with space below the counter for your washer and dryer.
Elegant 4 Bedroom House Plan – Sizes and Spaces
The total size of the house is 149M2, with a ground floor area of 84 M2 and an upper floor area of 65 M2.
The overall plinth dimensions is 11 meters by 10.1 meters
Land Requirements
This design is perfectly suited to fit on an eighth of an acre piece of land but it can be squeezed into a 40*80 piece of land, leaving minimal space around the house.
Elegant 4 Bedroom House Plan – Detailed Features
- Spacious Living Room
- Adjoining Dining Room
- A total of 4 bedrooms and 3 bathrooms
- Master en suite Bedroom Upstairs
- 2 additional Bedrooms Upstairs Sharing a Bathroom
- 1 Bedroom Down Stairs
- 1 Shared Bathroom Down Stairs
- Kitchen
- External Utility/Dhobi area
- External Terrace
Visit our FAQ's to get more details on how to get this house plan





General
Related Posts
494 Comments
- Edwin January 18, 2018 at 12:33 pm - Reply
- David January 19, 2018 at 7:48 am - Reply
Hi Edwin,
I have sent you an email with all the details.Thanks
-
Hi David,
Can the design be reviewed to include the car port
- David February 10, 2021 at 12:00 pm - Reply
Hi Godffrey,
Yes the design can include a car port. I hope you got our email.Thanks
- Harison Kariithi Macharia September 2, 2021 at 6:42 pm
- David September 7, 2021 at 1:35 pm
Hi Harrison,
All details have been shared to your email.Get in touch.
Thanks
-
-
-
- William May 29, 2019 at 10:48 am - Reply
Interested. Plan for rural home. This is my perfect design. Though we can modify, for example dhobi area may not be a priority
- David May 29, 2019 at 11:35 am - Reply
Hi William,
Check your email for all the details on this house plan. We can omit the dhobi area if its not a priority for you.Awaiting your response, thanks.
- Salim August 23, 2019 at 11:07 am - Reply
Hi david I am interested for I have a land already and was just thinking of a best design of my future home.I will appreciate if you give me a detailed cost to build this exact design but with a balcony.
- David September 4, 2019 at 9:43 am - Reply
Hi Salim,
Check your email for all the details.Thank you for getting in touch.
-
-
-
How much does it cost when the land is mine?
- David July 10, 2019 at 5:06 am - Reply
Hi Christine,
I have sent you several emails. I hope you have received them. Kindly check your inbox or your spam. I have sent you details on this plan as well as other 4 bedroom house plans.Than you for getting in touch.
- Maxwel March 14, 2020 at 8:58 am - Reply
Good house can I get a quotation on the cost of construction
- David March 17, 2020 at 10:07 am
-
-
-
- Velma Barasa July 18, 2019 at 6:28 pm - Reply
I'm interested in more details concerning this plan and the cost implications.
- David July 19, 2019 at 6:10 am - Reply
Hi Velma,
Kindly check your email for all the details on this house plan.Awaiting your response.
Thanks
-
- Koome February 15, 2020 at 5:42 pm - Reply
Hi David,am Koome,am planning to build a four bedroom house.My plot size is 130×80 which I also intend to do farming.please advise on how best to utilise this plot,cost of architectural plans,building cost for single stony versus one stony
- David March 13, 2020 at 3:00 pm - Reply
Hi Koome,
Check your email for all the details.Thank you.
- BONFACE April 23, 2021 at 11:49 am - Reply
Hi David, am interested in a 4 bedroom massionate. 3 bedrooms upstairs and a study room, this includes shared toilet, master ensuite bedroom. Ground floor has one guest bed room, living room, dinining room, kitchen, store and toilet
- David April 27, 2021 at 12:35 pm
-
-
- Mercy May 1, 2020 at 10:59 am - Reply
- David May 2, 2020 at 9:47 am - Reply
Hi Mercy,
I'm not sure I know exactly what you mean. Say that again.
-
-
-
- Kelvin January 19, 2018 at 2:35 pm - Reply
Hi David,
his is perfect.Kindly send me the costing details.
Can one build an extra dsq outside for the boy when he grows up as they may not want to sleep in the main house.
Is it possible to include a family lounge upstairs?
Share more house plans.- Donald December 23, 2019 at 10:47 am - Reply
Hi David,
Good work your are doing here, Kindly send me more details of this plan and total costings- David January 15, 2020 at 10:21 am - Reply
Hi Donald,
I have send you an email with all the details.Thanks
-
-
- Isaac January 19, 2018 at 10:23 pm - Reply
- David January 22, 2018 at 6:45 am - Reply
Hi Isaac,
All the details sent to your inbox!
-
- Michael January 21, 2018 at 2:07 pm - Reply
Hello David.. Am planning to build a residential house at malindi. My budget is 1.5m for a 3 bedroom house. Kindly help me out
- David January 22, 2018 at 8:00 am - Reply
Hi,
With a tight budget of 1.5M, there are several things you can consider doing in order to reduce construction cost and fit the house within your budget:
1. We can simplify the house plan to make it very simple and just the right size for your budget
2. Select simple finishes that will cost much less
3. Undertake the construction yourself supervising workers and sourcing your own materials to save on money that you would need to pay a contractor
4. Build your house in phases. Your budget can allow you to build your structure and a few finishes, taking the house to a place where it can be occupied. With time, as more funds become available, you can continue working on finishes, e.g. tiling, cabinets, painting/wall finishes and so on.
5. For a simple bungalow, you will not need to have structural drawings for approvals, thus you will save some cash on that.
Check your email for more details.
Thanks
-
- Peter Gatiti January 22, 2018 at 6:16 pm - Reply
- David January 23, 2018 at 8:02 am - Reply
Hi Peter,
I have sent you and email with all the details.Thanks
-
- Kelvin January 23, 2018 at 1:41 pm - Reply
You have not shared the details
- David January 24, 2018 at 5:37 am - Reply
Hi Kelvin,
I sent you an email yesterday, Tue 23-Jan-18 11:27 AM. Check your spam if you don't have it on inbox.If you don't get me email kindly call me on 0721 318614/ 0721 411606
- Kerubo Matara April 14, 2020 at 8:03 pm - Reply
Hi David….this is my dream house..perfect! Kindly share the plan and cost and other 4 bedrooms maisonette plans you have. Blesssings.
-
- Angel January 24, 2018 at 1:24 pm - Reply
- David January 25, 2018 at 6:23 am - Reply
Hi Angel,
I have sent you an email with all the details.
-
- Kim January 25, 2018 at 8:43 pm - Reply
Hallo David.
Am impressed by Your designs and advice to prospective customers.
I have a 40ftx160ft Plot that I want to Build My Family home comprising of 4/5 bedrooms, Small Personal office, Gym Room, and Leave sone Space for a Kitchen garden and Compound.
My concern is that the Plot width is too narrow at 40ft BUT the Length is at 160ft.
Kindly advice.
- David January 26, 2018 at 7:11 am - Reply
- Simba April 3, 2020 at 7:17 pm - Reply
Hello,
I like the plan; I would like to know the dimensions of the rooms and cost of the plan.- David April 7, 2020 at 1:02 pm - Reply
-
-
- Veronicah January 28, 2018 at 8:25 pm - Reply
I love it! What would it cost to build one of these in Kimana areas, This is a small town located in Kajiado South about an hour drive from Emali.
- David January 29, 2018 at 6:33 am - Reply
Kindly check your email Veronicah for all the details.
Thanks
- Terry February 5, 2018 at 1:51 am - Reply
David,
We are very strongly considering this design for our home in Kimana. After days of looking at plans of all types, your designs seem to stand out above the rest. Would you happen to have any pictures of this design after being built? We are very curious to see what it would look like in person.
- David February 5, 2018 at 7:47 am - Reply
Hi Terry,
I have sent you all the details regarding this house plan.
I wait to hear from you.Thanks
- Kawira January 2, 2020 at 8:49 am
hi I like the house plan. I'd like to know the construction cost.
- David January 8, 2020 at 7:26 am
Hi Kawira,
The standard cost of building currently is between KES 25,000 – KES 35,000 per square meter, according to the latest published rated from the Institute of Quantity Surveyors of Kenya, depending on finishes and location of the project. This house plan is a total of 149M2, it would cost you between 3.725M and 5.215M. Keep in mind there are many factors that affect the cost of construction and the rate given is pretty comprehensive. The location of the project will also affect the cost of construction.Check your email for more details.
Thanks
- Henry Nzimolo April 18, 2020 at 4:58 pm
Hi David,
I'm interested on the Elegant 4 Bedroom house.
Please advise.
Thank you - David April 20, 2020 at 12:08 pm
Hi Henry,
Check your email for all the details.Thanks
-
-
-
-
- Muthoni February 14, 2018 at 5:37 am - Reply
I like it. please send me more info
- David February 14, 2018 at 6:43 am - Reply
Email with all the details sent to you.
Thanks
-
- Peter February 17, 2018 at 5:31 pm - Reply
Intetested. What's the construction cost and cost of the plans?..in Kitengela, Kajiado County
- David February 19, 2018 at 7:15 am - Reply
Hi peter,
Check your email for all the details.Thanks
- Benson Atuya March 21, 2020 at 12:29 pm - Reply
I like it I wanna build please share more information plus construction cost.
- David March 22, 2020 at 8:31 am - Reply
- Kerubo Matara April 14, 2020 at 8:09 pm - Reply
Hi David….this is my dream house..perfect! Kindly share the plan and cost and other 4 bedrooms maisonette plans you have. Blesssings.
- David April 15, 2020 at 7:33 am
Hi Kerubo,
Check your email for all the details on this house plan.Thanks
-
-
-
-
- sarah February 18, 2018 at 3:53 pm - Reply
I am interested send more more info please
- David February 19, 2018 at 7:31 am - Reply
Hi Sarah,
Check your email for all the details on this house plan.Thanks for getting in touch.
- Lilian October 17, 2019 at 7:35 am - Reply
I'm interested with the cost of building this house. Will 3million work?
- David October 18, 2019 at 8:22 am - Reply
Hi Lillian,
The standard cost of building currently is between KES 25,000 – KES 35,000 per square meter, according to the latest published rated from the Institute of Quantity Surveyors of Kenya, depending on finishes and location of the project. This house plan is a total of 149M2, it would cost you between 3.725M and 5.215M. Keep in mind there are many factors that affect the cost of construction and the rate given is pretty comprehensive. The location of the project will also affect the cost of construction.Your budget of 3M will take you a long way but you might need to top it up to finish your house completely.
Thanks for getting in touch.
-
-
-
- Njeri March 13, 2018 at 11:55 pm - Reply
have a budeget of 4 million to build a 4 bedroom house in nyahururu. please advise.
- David March 14, 2018 at 5:53 am - Reply
Hi Njeri,
I have sent you an email with all the details.Thanks for getting in touch.
- munia June 17, 2020 at 12:51 pm - Reply
Hi, how much would this cost to construct ? Thanks
- David July 15, 2020 at 11:56 am - Reply
Hi Munia,
The standard cost of building currently is about 35,000 per square meter, according to the latest published rated from the Institute of Quantity Surveyors of Kenya, depending on finishes and location of the project. This house plan is a total of 149M2, it would cost you about 5.215M. Keep in mind there are many factors that affect the cost of construction and the rate given is pretty comprehensive. The location of the project will also affect the cost of construction.I have sent you more details on email on how to get the house plan.
Thanks
-
-
- Antony Wahome Ndirangu March 19, 2018 at 6:16 am - Reply
Interested and am in Nakuru
- David March 20, 2018 at 7:05 am - Reply
Hi Antony,
Thank you for getting in touch. Kindly check your inbox for all the details regarding the Elegant 4 Bedroom house Plan.
-
- Rhinah April 1, 2018 at 8:00 am - Reply
What would be the cost of putting up the elegant 4 bedroomed house without doing the finishing but making it ready for occupation?
- David April 3, 2018 at 6:06 am - Reply
Hi Rhinah,
Kindly check your email for all the details on this house plan.Thanks for getting in touch.
-
- Albert Mibey April 2, 2018 at 6:14 am - Reply
Hello David,
Interested in this house plan, kindly send estimates for the same in Joska
- David April 3, 2018 at 5:48 am - Reply
Hi Albert,
I have sent you all the details on this house plan.Awaiting your response.
Thanks
- Muindi January 22, 2020 at 7:48 pm - Reply
Intrested what are the costs of the plan plus approvals intent to fit in a 40by60 ff plot
- David January 23, 2020 at 11:13 am - Reply
Hi Muindi,
We can definitely customize this house plan to your needs. Check your email on the details of getting the plans and approvals.Thanks
-
-
-
- seth April 3, 2018 at 10:10 am - Reply
Hello David,
i got a 50*100 plot in Syokimau with a possibility of buying off my neighbor to make it 1/4 acre. i'm soo intrigued by a flat roof and i feel i should walk that path,kindly advice on the ideal one preferably a 4-5 br all ensuite, well lit with an entertainment lounge including an approximate cost and your fee.- David April 4, 2018 at 8:46 am - Reply
Hi Seth,
The flat roof houses are great and what you have described can work very well on a 1/4 acre piece of land. I have sent you an email with all the details.
I wait to hear from you.
Thanks
-
- Priscilla April 7, 2018 at 5:23 pm - Reply
Hi David, I have been looking for an architect to design a building on a three quarter acre in Nrb and from what I have read on your website it appears I have just found the right architect in you.
One issue I have is I want to build more than one house allowed by NCC on the plot if possible 4 bedroom 4 villas or so in a mini gated community designed in a way they look like one unit – I can send you a rough sketch. If necessary I plan to seek change of use from NCC because I believe using the place is a waste of land and also because i would want to live in one villa and let out the others. I am also interested in your green/sustainable construction.
Please let me know we can move on to work with you.
Priscilla- David April 9, 2018 at 1:07 pm - Reply
Hi Priscilla,
Kindly check your inbox for an email with all the details.Awaiting your response.
-
- Geoffrey Otuko April 11, 2018 at 12:09 pm - Reply
Hi. I am interested in this house plan and would love to know how much it would cost to buy the plans. I am planning to put up a family house using the makiga blocks. Kindly advice whether this would be viable. Kindly advice me on what size of land this house would sit on bearing in mind expansion and other concerns. Thanks.
Regards,
Geoffrey Otuko
- David April 11, 2018 at 2:39 pm - Reply
Hi Geoffrey,
Kindly check your inbox for all the details on this house plan. I wait to hear from you soon.Thanks
-
- Geoffrey April 11, 2018 at 5:44 pm - Reply
Hi David,
Can I have more details on this one. What other options do you have for four bedroom mansion- David April 12, 2018 at 7:09 am - Reply
- Geoffrey Otuko May 12, 2018 at 12:03 pm - Reply
Hi David,
Good afternoon. I would love to build Elegant 4 Bedroom House Plan this house for my retirement home. Kindly advice me how much the plans and architectural works will cost. Can I use the inter-locking blocks to do this project or the bricks. How soonest on payment can i be able to get these details?
Regards,
Geoffrey
-
- Nancy April 27, 2018 at 9:40 am - Reply
What of details of a 3 bedrooms bungalow.
- DORCAS April 27, 2018 at 12:09 pm - Reply
Hi David, Saw this design and am interested.Kindly send me more information.
- David May 2, 2018 at 5:52 am - Reply
Hi Dorcas,
Thank you for getting in touch with us regarding this house plan. I have sent you a detailed email on it.Awaiting your response.
-
-
Hi. I am interested in this house plan and would love to know how much it would cost to buy the plans. I am planning to put up a family house using the makiga blocks. Kindly advice whether this would be viable. Kindly advice me on what size of land this house would sit on. Thanks.
- David May 16, 2018 at 7:57 am - Reply
Hi Mathew,
I hope you received our detailed email with all the details on your inquiry.Awaiting your response and thanks for getting in touch.
-
- Sam Njue April 28, 2018 at 9:16 am - Reply
David,
Can u add a balcony ? Interested.- David May 2, 2018 at 9:42 am - Reply
Hi Sam,
We can definitely add a balcony to this house plan as you may require at no additional cost. Kindly check your inbox for all the details.Thanks
-
- Kevin April 30, 2018 at 3:23 pm - Reply
Hi David, kindly share the cost and any other details for this house plan. I have 1/4 acre to utilise.
- David May 2, 2018 at 8:18 am - Reply
Hi Kevin,
A 1/4 acre is more that adequate for this house plan. You will be left with adequate space all around because this plan is planned for 1/8th acre.
I have sent you all the details via email.Thanks
-
-
Hi David, am intrested in the above can i have the details pls and if possible a rough estimate of how much it would cost.
- David May 2, 2018 at 7:49 am - Reply
Hi Mathew,
Check your email. I have sent you a detailed email on this house plan.
Thanks for getting in touch.
-
- Brian May 4, 2018 at 8:07 am - Reply
Hello, Am interested in this plan, are there more details i can get like cost of construction.
- David May 9, 2018 at 7:53 am - Reply
Hi Brian,
I hope you got my email on this house plan. Awaiting your response.Thanks
-
- brenda May 7, 2018 at 6:23 am - Reply
hi
i would like to construct a 4 bedroom house with abudget of 2m ,how can i go about it- David May 10, 2018 at 5:46 am - Reply
Hi Brenda,
Your budget of 2M is great and it allows you to start your construction project. My best advice is building your home in phases. Go as far as you can with what you have, your target being to move it then work on the rest of the house (finishes) slowly as more funds become available.
I have sent you more details on email and I wait to hear from you.
Thanks
-
- Obed Omweno May 17, 2018 at 12:11 am - Reply
- David May 18, 2018 at 11:40 am - Reply
Hi Obed,
A 30*60 piece of land is enough for this house, it has been designed to fit in such small properties but do remember that you will not have much space around the house. Check your email for more details.Thanks
-
- Stanley May 19, 2018 at 8:01 am - Reply
Hi .am interested .please send me the estimates to put up such.
- David May 22, 2018 at 8:00 am - Reply
Hi Stanley,
I hope you received my email.Thanks
-
- Dominic May 28, 2018 at 12:11 pm - Reply
Hi David,
I love this design, kindly send me details as far as plan price and rough estimate for the house. Thank you.- David May 29, 2018 at 5:03 am - Reply
Hi Dominic,
I have sent to you via email all the details regarding this house plans.Thank you for getting in touch.
-
-
Hi,
am interested in this elegant 4 bedroom house ,how much can it cost
and can i be able to put on the structure with an amount of KSH 3.6m,
then do the finishing while staying inside the house. - Jonathan May 30, 2018 at 8:42 am - Reply
Am interested kindly share more details and approximate cost
- David May 31, 2018 at 7:11 am - Reply
Hi Jonathan,
The standard cost of building currently is between KES 25,000 – KES 35,000 per square meter, according to the latest published rated from the Institute of Quantity Surveyors of Kenya, depending on finishes and location of the project. This particular house plans are 149M2 so you can estimate a cost of between 3.725M-5.215M depending on the finishes used. Keep in mind a lot of factors that affect the cost of construction.
I have sent you more details via email.
Thanks for getting in touch.
-
- Harrison June 3, 2018 at 5:50 am - Reply
Please send me costing for this plan, looks ideal
- David June 4, 2018 at 7:20 am - Reply
Hi Harrison,
Kindly check your email for all the details.Thanks
-
- Serah June 4, 2018 at 7:34 pm - Reply
Hi,
A four bedroom house all ensure with the kitchen and guest room on the ground floor and the rest of the bedrooms in second floor plus a study.What kind of cost are we looking at?
The plot is 50*100- David June 5, 2018 at 6:28 am - Reply
Hi Serah,
This plan below generally captures what you have described. It has 4 bedrooms, all en-suite, 3 upstairs and 1 down stairs. The TV area can easily be converted into a study. This plan is a total of 224 M2.http://davidchola.com/house-plans/4-bedroom-house-plan/
The plot is a good size for this kind of house plan. Please check your email for more details and thank you for getting in touch.
-
- Krystine June 9, 2018 at 1:22 pm - Reply
Interested in this house plan.Kindly send me details.Thank you
- David June 11, 2018 at 6:06 am - Reply
-
- Krystine June 9, 2018 at 1:41 pm - Reply
Kindly also send cost estimate on a 50×100 piece.
Thank you- David June 11, 2018 at 6:06 am - Reply
Hi Krystine,
I have sent you a detailed email on the Elegant 4 Bedroom House Plan.Awaiting your response.
Thanks
-
- Ruth July 4, 2018 at 7:34 pm - Reply
Hi.
I like the plan for this house.
How much will it cost to construct this house- David July 5, 2018 at 5:18 am - Reply
Hi Ruth,
The standard cost of building currently is between KES 25,000 – KES 35,000 per square meter, according to the latest published rated from the Institute of Quantity Surveyors of Kenya, depending on finishes and location of the project. This particular house plans are 149M2 so you can estimate a cost of between 3.725M-5.215M depending on the finishes used. Keep in mind that is a pretty comprehensive rate and a lot of factors affect the final cost of construction.Check your email for more details. Thanks
-
- Samnjuguna July 5, 2018 at 9:48 am - Reply
Hi, how much does the plan cost as it is. and if we do customisation (15% – 25% of the original plan.
- David July 6, 2018 at 5:44 am - Reply
Hi Sam,
I hope you got my email yesterday. Normally, we don't charge for small adjustments but if the adjustments are extensive or they affect many aspects of the plan then we would need to discuss that.Awaiting your response.
- Osendo August 28, 2019 at 8:18 pm - Reply
Hi David ,
I love what I am seeing and I am interested.if we can engage more that would be good because I need to put up something in utawala soon.have a good one- David September 4, 2019 at 10:56 am - Reply
Thank you for your kind comments Osendo.
I have sent you an email with all the details on this house plan. Respond and lets engage on your construction project.
Thanks
-
-
- Dennis July 7, 2018 at 11:25 am - Reply
Hello David, could I get the plans for the above?
- David July 10, 2018 at 6:02 am - Reply
Check your inbox Dennis.
Thanks
-
-
Hey David. I am planning to construct a four-bed room mainsonette on 1/8 of an acre.
Please advise the cost of the plan,approval costs by the county government(kiambu), the approximate cost up to completion.- David July 17, 2018 at 5:51 am - Reply
Hi David,
Check your email. I have sent you a comprehensive response to your queries. Looking forward to hearing from you.Thanks
-
-
Hey David. I have 1/8 acre plot where i want to build a four-bedroom maisonette.All rooms ensuite and a gazzebo. How much is the plan together with approvals of the county government(Kiambu) and the approximate construction cost.
- David July 18, 2018 at 5:28 am - Reply
I hope you got my email.
Thanks
-
- Nicholas July 20, 2018 at 9:13 am - Reply
am interested kindly send the cost and house plan
- David July 23, 2018 at 10:37 am - Reply
Hi Nicholas,
I have sent you several emails. Kind revert back. The terms of service are pretty much the same for all our 4 bedroom house plans.Thanks
-
- Bernard salim July 26, 2018 at 12:52 pm - Reply
How much can this cost please?
- David August 8, 2018 at 2:15 pm - Reply
Hi Bernard,
Email sent with all the details.Thanks
-
- simon August 11, 2018 at 1:48 pm - Reply
how much does the plan cost
- David August 14, 2018 at 12:13 pm - Reply
Sent you the details via email for both house plans.
Thanks for getting in touch.
-
- Jassan August 25, 2018 at 3:57 pm - Reply
I need advice of apprx budget on 4 bedroom house with front and back balcony,spacious l/room and a study/office and a jacuzzi.Land in plan is 1/8acre plot.
- David August 29, 2018 at 12:01 pm - Reply
Hi Jassan,
I have sent you an email with all the details.Thanks you.
-
- Henry Chira August 27, 2018 at 7:16 am - Reply
Hi David,
Was just checking house designs. am in love with this one. Let me have more details on it, prospective construction site is Thika area.- David August 27, 2018 at 12:39 pm - Reply
Hi Henry,
Thank your for visiting and getting in touch. A detailed email has been sent to you on this house plan.I wait to hear from you.
-
- Henry Chira August 27, 2018 at 7:30 am - Reply
Hi David Was just checking house designs and came across this Elegant 4. This one looks good and i like it with a normal roof. Let me have more details on it including total construction costs, prospective construction site is Thika.
- David August 28, 2018 at 12:11 pm - Reply
Hi Henry,
I hope you got me detailed email.Awaiting your response. Thanks
-
- ALI ORUTE JUMA September 5, 2018 at 7:10 pm - Reply
Hi David, I have a plan to build 4 bedroom maisonnete in a plinth area of 180 square meters with front and back balcony and family lounge upstairs on1/8 acre plot. Whtas the approximate budget?
- David September 6, 2018 at 7:17 am - Reply
Hi,
I assume from your post that you would like to build a house with a total area of 180M2. Correct me if I am wrong.The standard cost of building currently is between KES 25,000 – KES 35,000 per square meter, according to the latest published rated from the Institute of Quantity Surveyors of Kenya, depending on finishes and location of the project. Using this rate, a house of 180M2, it would cost you between 4.5M and 6.3M. Keep in mind there are many factors that affect the cost of construction and the rate given is pretty comprehensive. The location of the project will also affect the cost of construction.
You will also need to factor in the cost of professional services (architectural, structural, getting a BQ etc) as well as the cost of getting your plans approved.
-
- ALI ORUTE JUMA September 6, 2018 at 3:04 pm - Reply
Good Evening David,
Thanks for your response. What is the cost of professional services (architectural, structural, BQs and getting getting the plans approved?
Ali Orute Juma
- Agnes Njenga September 9, 2018 at 9:13 am - Reply
Hi David, very soon am planning to build 3/4 bedroom maisonate on 1/8 plot. Would you please share your latest plans and/or ideas.
- David September 10, 2018 at 7:43 am - Reply
Hi Agnes,
I have sent you an email with all the details. If you can visit our offices, we can discuss many other plans/ideas for your construction project.Awaiting your response.
-
- Eliud September 10, 2018 at 12:36 am - Reply
Interested. Kindly send me more info.
- David September 10, 2018 at 6:56 am - Reply
Hi Eliud,
Check your email for all the details on this house plan.Thanks
- Julius September 24, 2020 at 6:05 pm - Reply
Hi David, please let me know how we can do business
Julius- David September 25, 2020 at 7:39 am - Reply
Hi Julius,
What business do you have in mind? Email or call us:support@davidchola.com
0721 318614/ 0721 411606Thanks
-
-
-
- fred September 17, 2018 at 2:05 pm - Reply
hi David,
I would like more info concerning the plan- David September 19, 2018 at 11:12 am - Reply
Hi Fred,
I have sent you an email with all the details.Awaiting your response.
-
- Doreen September 17, 2018 at 8:16 pm - Reply
Hello,
How much for the plan and approximately how much will it cost to put up this house?
- Edwin Rutto June 16, 2020 at 7:18 pm - Reply
Hi. I am interested in this house design for a plot in Ngong. Please send me the details regarding the construction costs.
- David October 6, 2020 at 8:34 am - Reply
HI Edwin,
Check your email for all the details on this house plans.I await your response.
Thanks
-
-
- Mugure October 11, 2018 at 3:58 pm - Reply
Hi. Am interested please advice on cost implications.
- David October 17, 2018 at 9:06 am - Reply
Hi Mugure,
I have sent you details on email. Awaiting your response.Thanks
-
- Janet October 12, 2018 at 10:17 am - Reply
Hello David,
We want to build a four-bedroom house on an eighth of an acre. However,We would like to know the approximate cost of a Mansionette versus a Bungalow so as to make a decision. And also the cost of the plans. Thank you.
- David October 17, 2018 at 7:17 am - Reply
Hi Janet,
There is a cost difference but its not that major. While you have an extra slab to deal with in a maisonette, you will have a bigger foundation and roof to build for a bungalow. Space constraints are also a big consideration, considering you are building on an eighth acre. Lastly personal preference.Check your email for more details.
Thanks
-
- Lloyd October 12, 2018 at 3:46 pm - Reply
Hi David,
I would like to know how much it would cost me to build such a house with modest finishing and a bit of landscaping.
- David October 15, 2018 at 9:25 am - Reply
Hi Llyod,
Check your email for all the details.Thanks
-
- Joe October 15, 2018 at 8:04 pm - Reply
Hi David i like this plan also kindly send me and have in mind i would love a 4bed room Maisonnette with a big master ensuite(big closet , bathroom& good balcony), a good but not too big prayer room, 2bedrooms (sharing toilet/bathroom) upstairs & 1 bedroom downstairs, big Lounge & kitchen and all necessary other other rooms. Please inbox me such a plan and estimated building costs?
- David October 17, 2018 at 8:23 am - Reply
Hi Joe,
I hope you got our email. Awaiting your response.Thanks
-
-
hi, have sent you an email two weeks ago yuo haven't respond
- Rose October 22, 2018 at 10:29 am - Reply
Dear David,
Thanks for your great work and advice. I want to build a simple 4 bedroom maisonette at Joska area, Kangundo road. Kindly share with me the plans I can pick from and the estimated cost.
- David October 24, 2018 at 6:53 am - Reply
Hi Rose,
I have sent you an email with all the details.Thanks
-
- FRANCIS October 27, 2018 at 3:50 pm - Reply
Hello, am interested in this plan. Kindly send me the details.
Thanks
- David October 30, 2018 at 8:45 am - Reply
Hi Francis,
I hope you got my email. Get back to me and we can craft a way forward.Thanks
-
- Alice October 27, 2018 at 4:09 pm - Reply
Hi David,
Am very impressed but your designs.
I want this one on a tight budget.
Kinoo area,I appreciate your help.- David October 29, 2018 at 7:37 am - Reply
Hi Alice,
I have sent you details of this house plan to your inbox. Do not let your tight budget hold you back. Phasing your construction project is the best way forward. It may take you a little longer, but you will get there.Awaiting your response, thanks.
-
- Bryan October 29, 2018 at 8:41 am - Reply
HI David,
Am interested in this design, seems well thought. Please inbox me further details then we can talk.
- David October 30, 2018 at 8:29 am - Reply
Hi Bryan,
I hope you got my email.Thank you for getting in touch.
-
- Henry November 1, 2018 at 12:24 pm - Reply
Greetings
Kindly email me details of this design and other options for building on an eighth – bungalow vs maisonette – on a tight budget
Thanks
- David November 2, 2018 at 8:39 am - Reply
Hi Henry,
Kindly check your email for all the details, comparing bungalows vs maisonettes.I wait to hear from you.
Thanks
-
- Viola Kipkemoi November 2, 2018 at 3:26 pm - Reply
Hi David, i just like this design. I need a 4 bedroom maisonette with walls straight up in all the 4 sides.
1 bedroom downstairs. kindly share also the plan for this house design .- David November 6, 2018 at 12:45 pm - Reply
Hi Viola,
I have sent you all the necessary details on 4 bedroom maisonette house plans.I await your response, thanks.
-
- Edward December 7, 2018 at 9:37 am - Reply
Hello David,
I love the house. Kindly share the plan
- David December 7, 2018 at 12:36 pm - Reply
Hi Edward,
Check your email for all the details.Thanks
-
- Peter December 10, 2018 at 1:01 pm - Reply
Hi David,
I like this design. I need a 4 bedroom maisonette, with a balcony for master bedroom, but without a chimney.
1 bedroom downstairs.Kindly share also the plan for this house design.
- David January 11, 2019 at 11:28 am - Reply
Hi Peter,
I hope you got my email with all the details. We can adjust the house plan to fit within what you want. Get in touch.Thanks
-
- Peter December 10, 2018 at 1:08 pm - Reply
Hi David,
I like this design.
I need a 4 bedroom maisonette with a balcony for master bedroom but without a chimney.
1 bedroom downstairs.Kindly share also the plan for this house design.
- David December 11, 2018 at 10:59 am - Reply
Hi Peter,
I have sent you an email with all the details on this house plan. I wait to hear from you.Thanks
-
- Peter December 10, 2018 at 1:11 pm - Reply
Hi David,
I like this design. I need a 4 bedroom maisonette with a balcony for master bedroom but without a chimney.
1 bedroom downstairs.Kindly share also the plan for this house design.
- David December 11, 2018 at 10:54 am - Reply
Hi Peter,
Check your email. I have sent you all the details.Thanks
-
- silas bwire December 11, 2018 at 2:05 am - Reply
Hi David,
I am interested in the plan. Pleas sent me all the details including the cost.- David December 13, 2018 at 1:58 pm - Reply
Hi Silas,
I hope you got my email with all the details.Get in touch, thanks.
-
- Nathan December 14, 2018 at 5:13 pm - Reply
Hi David. I impressed with your designs and how Handle your customers. I've gone through your responses to clients and it's satisfying reading prompt answers
Am in Kajiado town and planning to up a 3 bed-room storey maisonette with a budget of 3m. How can you assist me to achieve my dream?- David December 17, 2018 at 10:55 am - Reply
Hi Nathan,
Thank you for your kind comments. I have sent you a detailed email as well as some sample house plans that you can look at. I await your response.
-
- Victor December 27, 2018 at 12:10 pm - Reply
Kindly share with me the costing and other details
- David January 11, 2019 at 11:11 am - Reply
Hi Victor,
Email sent with all the details.Thanks
-
- Ruth December 30, 2018 at 2:40 pm - Reply
Hi David,
Would you kindly share with me the various designs you have for a 4 bedroom maisonette suitable for a 40×80 plot at katani area. Is it achievable with a budget of 3M. Thanks.
- David January 16, 2019 at 10:08 am - Reply
Hi Ruth,
I hope you got our email. I sent you some sample plans suitable for a 40*80 piece of land as well as approximate construction cost.Revert back for further discussions.
Thanks
-
- Ruth December 31, 2018 at 8:04 pm - Reply
Hi David,
I am impressed by your designs and checking if you have more collections you can share, I need to build a 4 bedroom maisonette house in a 40×80 plot at Katani and looking for a design which is suitable with a tight budget. How much is a plan and how much do I need in order to build to a level that it can be occupied with finishing done in bits? Katani area is black cotton soil. Thanks.
- David January 18, 2019 at 11:39 am - Reply
Hi Ruth,
I sent you a detailed email some time back. Let me know if you got it.Thanks
- Antony July 17, 2019 at 2:22 pm - Reply
Hi David,
Kindly share with me the various designs you have for a 4 bedroom maisonette suitable for a 40×80. My budget is 3m can it build or do I settle for a bungalow?
- David July 18, 2019 at 5:53 am - Reply
Hi Antony,
I have sent you an email with various plans that you can consider. With simple finishes, you can stay within your budget. A well sized/designed bungalow can definitely help you cut your construction cost by a good enough margin.I wait to hear from you.
Thanks
-
-
- Joram Mbui January 6, 2019 at 5:20 am - Reply
Hi? Good work. Interested in doing such 4 bedrooms in kitengela. How much would it cost?
- David January 10, 2019 at 5:17 am - Reply
Hey Joram,
I hope you are doing well. Check your email. Details sent. Visit us for further discussion.Thanks
-
- Morphic January 7, 2019 at 8:31 am - Reply
prompt and helpful responses there. Am interested.
- David January 10, 2019 at 11:19 am - Reply
Hi Morphic,
I have sent you details on the Elegant 4 Bedroom House Plan.I wait to hear from you.
Thanks
- David January 10, 2019 at 11:25 am - Reply
Check your email Morphic.
I have sent you all the details.
Thanks
-
- George January 7, 2019 at 7:44 pm - Reply
Interested in 3 bd house, plus costs
- David January 9, 2019 at 6:45 am - Reply
Hi George,
Kindly check your email for all the details. I have sent you sample plans as well as estimate costs.I wait to hear from you.
Thanks
-
- Ekisa January 14, 2019 at 12:11 pm - Reply
Interested in this Elegant 4 bedroom, please send details. Thanks
- Linda January 14, 2019 at 2:19 pm - Reply
Interested want to build a 4 bedroom in a 50*100 leaving some space behind and in the front kindly advice with a sample plan of the house and estimated cost of building that house in Mariakani Kilifi County
- David January 16, 2019 at 8:19 am - Reply
-
- LindaP January 14, 2019 at 2:25 pm - Reply
Interested want to build a 4 bedroom in a 50*100 leaving some space behind and in the front kindly advice with a sample plan of the house and estimated cost of building that house in Mariakani Kilifi County
- LindaP January 14, 2019 at 2:53 pm - Reply
Interested in 4 bedroom plot size 50*100 living some space behind and in front plus it's sample plan and costs
- LindaP January 14, 2019 at 2:54 pm - Reply
Interested in 4 bedroom plot size 50*100 living some space behind and in front plus it's sample plan and costs location Mariakani Kilifi County
- Ken Owen January 31, 2019 at 4:54 am - Reply
Hi Architect David,i live in Nairobi Nasra garden owning a quarter acre piece of land and am interested in building a 5 bedroom maisonette in March
Please send me the details as well- David February 4, 2019 at 12:04 pm - Reply
Hi Ken,
I sent you an email with some sample house plans. I wait to hear from you for further discussions.Thanks for getting in touch.
-
- John Nyangaresi Onsaki February 3, 2019 at 6:57 am - Reply
Elegant as well to compare
- Caroline Muriithi February 23, 2019 at 10:06 am - Reply
Hi Chola, im Caroline living in Kite.interested in homely 4 bedroom maisonette with tight budget.
- David February 26, 2019 at 8:23 am - Reply
Hi Caroline,
I have sent you some sample 4 bedroom house plans as well as indicative cost of construction. We can discuss further on how to keep you construction within budget once you get in touch.thank you for reaching out to us.
-
- Moses February 23, 2019 at 11:51 am - Reply
Hi David, nice plan, this. Please send me more 4 bedroom mansionnete plans, and the breakdown for architectural and structural costs and any other costs for this 4 bedroom plan. Lastly, is the void space part of the 149sqm plinth area?
- David February 26, 2019 at 8:45 am - Reply
Hi Moses,
I have sent you this and some more house plans that you can consider. The total plinth area indicated on each plan is for usable space, voids not included. Kindly check you email for more details and revert back for further discussions.Thank you for getting in touch.
-
- Moses June 7, 2019 at 7:19 pm - Reply
Hi David, nice plan, this. Please send me more 4 bedroom mansionnete plans, and the breakdown for architectural and structural costs and any other costs for this 4 bedroom plan. between flat roof and normal roof design, what would you recommend
- David June 10, 2019 at 10:14 am - Reply
Hi Moses,
I have sent you some sample 4 bedroom house plans as well as details on how to get our plans. The choice between a flat room and a pitched roof is very personal. It totally depends on what you want and your budget. A flat roof is more expensive to construct. However, it gives you a lot of additional space on top of the roof that you can do so much with.Get in touch when then we can discuss further.
Thanks
-
-
How much does it cost when the land is mine?
- Stephen August 21, 2019 at 12:19 pm - Reply
I am interested in this plan, but would need more room/space for either family TV or as study room.
Pls advice, thanks Steve- David September 4, 2019 at 9:42 am - Reply
Hi Stephen,
We can definitely add a TV/Study room to this plan on the upper level. I have sent you an email with all the details.Awaiting your response, thanks.
-
- Samuel August 26, 2019 at 4:33 pm - Reply
Need this with a few modifications
- David September 4, 2019 at 9:47 am - Reply
Hi Samuel,
You can have the house plan with the modifications you want. Check your email.Thanks
-
- Simon Tum August 27, 2019 at 10:10 am - Reply
Hi.
I love the design. I would love to built it in a 40 * 80 plot and wish to add gym area.How much will it cost along Kamakis area if the plot is mine.- David September 4, 2019 at 9:49 am - Reply
Hi Simon,
This plan is perfectly suited for a 40*80 piece of land. We can definitely figure out the best way to incorporate a gym into the house plan.Check your email and get in touch.
Thanks
-
- David August 28, 2019 at 11:35 am - Reply
Hi David
kindly send me all the info for this design. I'm interested in the design and your work.- David September 4, 2019 at 10:53 am - Reply
Hi David,
I have sent you an email with all the details on this house plan.Thank you for getting in touch.
-
- Zahra Hussein August 28, 2019 at 8:41 pm - Reply
Interested . will it fit in a 50*100 plot? What's its estimated budget?
- Stephen September 30, 2019 at 8:46 am - Reply
Hi, How much for this design ?
- Stephen K September 30, 2019 at 8:47 am - Reply
Hi, How much for this design ?
- David October 1, 2019 at 6:41 am - Reply
Hi Stephen,
Kindly check your email. I have sent you all the details.Thanks
-
- Agatha December 11, 2019 at 5:14 am - Reply
Hi, can you tell me how much you charge for the design, and if you also take charge of the entire contract, how much you charge for that, and how much is required for the construction.
- David January 15, 2020 at 7:53 am - Reply
Hi Agatha,
I'm waiting for you to let me know when you can visit our offices. I look forward.Thanks
-
- Caroline December 12, 2019 at 1:14 pm - Reply
Hi David I really love this design.
Kindly email me detailed costs.
Thanks.- David January 15, 2020 at 7:54 am - Reply
Hi Caroline,
This is definitely a best seller! I hope you got my email on the detailed costs.Thanks for getting in touch.
-
-
Interested in your designs. How much for a 4 bedroom mansionette in Katani on an 1/8th acre land? Can 3 million do so that I be able to move in and finish later. Kindly send a cost breakdown of the same.
- David January 14, 2020 at 12:02 pm - Reply
Hi Nick,
I hope you got my emails. Get back in touch and we can take this conversation forwards.Thanks
-
- Boaz Ojwang January 3, 2020 at 4:57 am - Reply
Hello
Have 100by100 plot and interested in building the above house kindly send me the details and estimated cost of construction in Migori county- David January 8, 2020 at 1:53 pm - Reply
Hi Boaz,
Check your email. I have sent you all the details on this house plan.Revert back for further discussions.
Thanks
-
- Charles January 3, 2020 at 11:44 am - Reply
Hi Sir,
I would like more details on the above 4 br house , kindly send me more designs to choose from, also your cell phone if possible for fast communication. Plot is located at Kenyatta Road Juja.- David January 9, 2020 at 1:44 pm - Reply
Hi,
I have sent you different 4 bedroom house plans for you to look at.You can reach us on:
0721 318614/0721 411606Thanks
-
- Joe January 4, 2020 at 9:37 am - Reply
Please send me a quotation for a 4 bedroom house plan that can fit on a 30 by 60
- David January 22, 2020 at 11:50 am - Reply
Hey Joe,
I hope you are doing well. Check your mail and get in touch. All details sent!
-
- Mwangi January 12, 2020 at 6:56 pm - Reply
Hi David,
Nice plan, i love it, kindly if you don't mind send me the breakdown for architectural and structural costs and any other costs for this 4 bedroom plan. i want to have one in Embu. and also in Nairobi my be you can suggest two different design, one for Nairobi and Embu.- David January 13, 2020 at 1:30 pm - Reply
Hi Mwangi,
Check your email. You will find all the details on this house plan.Thanks
-
- Dhahabu January 13, 2020 at 12:14 pm - Reply
Interested. Kindly send me the details and estimated cost of construction
- David January 13, 2020 at 1:07 pm - Reply
Hi,
Kindly check your email for all the details on this house plan.Thanks
-
- Kevin Mulama January 14, 2020 at 2:13 pm - Reply
Hii interested in that design, kindly email me plus the total cost of the house
- David January 20, 2020 at 12:44 pm - Reply
Hi Kevin,
Check your email for all the details.Thank you for getting in touch.
-
- George January 23, 2020 at 12:30 am - Reply
Hi David,
Kandly give me the total cost of this house, and I will like to have a balcony.
- David January 23, 2020 at 11:05 am - Reply
Hi George,
The house plan has a bedroom accessible from the master bedroom. The balcony faces the front of the house.I have sent you more details via email. I wait to hear from you.
Thanks
-
- mathew January 23, 2020 at 5:20 pm - Reply
Thanks and Good work your are doing here, Kindly send me more details of this plan and total costings
- mathew January 23, 2020 at 5:21 pm - Reply
thank for the Good work your are doing here, Kindly send me more details of this plan and total costings
- David January 27, 2020 at 10:20 am - Reply
Check your email Mathew! All details sent.
Awaiting your response!
-
- Ndirangu January 23, 2020 at 10:51 pm - Reply
Hi, what's the cost of building this house?
- David January 27, 2020 at 9:15 am - Reply
Hi Ndirangu,
I have sent a detailed email on this house plan and the cost of construction.Waiting for your response.
Thanks
-
- Teresia Njoki January 24, 2020 at 1:23 pm - Reply
Hi interested in more details about costing etc..
- David January 27, 2020 at 9:13 am - Reply
Hi Teresia,
Check your inbox! All details sent on this house plan.Thanks!
-
- Faith January 24, 2020 at 2:27 pm - Reply
I love this plan very much, my ideal kind of house to begin this December. Would it be possible to adjust mine to have the masters bedroom and guestroom downstairs and have 2 ensuite bedrooms upstairs. How much would the plan cost me
- David January 27, 2020 at 1:00 pm - Reply
-
- mwangi February 12, 2020 at 8:09 pm - Reply
Hi David
i love this house plan is it possible to get it in 3d, to see how it will look like - ruttotimothy@yahoo.com February 14, 2020 at 1:28 pm - Reply
Hello David,
Planning for 4 bedroom house in 1/8 withour upper floors.confirm the estimate cost and the possibilities.Area Kitengela
- David March 13, 2020 at 3:01 pm - Reply
Hi Timothy,
I have sent you several emails. Check and revert.Thanks
-
- Methuzela Kiprop February 16, 2020 at 4:04 pm - Reply
Nice plan. Kindly share with me more details and costing . Thanks
- David February 25, 2020 at 2:22 pm - Reply
Hi Kiprop,
I sent you a detailed email on this house plan earlier. I hope you got it.Get in touch. Thanks
-
- JOHN February 17, 2020 at 1:38 pm - Reply
- David February 24, 2020 at 11:21 am - Reply
-
- Moussa March 2, 2020 at 12:24 am - Reply
Dear David,
I am very impressed to see your remarkable work and continuous great support.
I also would love to build my first house following your design of yours and would be very of you if you could send me the plan details in the following email abayeh202@gmail.com.
Salute & Best Regards,
Moussa- David March 3, 2020 at 12:11 pm - Reply
Hi Moussa,
Thank you for your kind comments. The information you have requested has been forwarded to you. Check and get in touch.Thanks
-
- Victor March 5, 2020 at 3:42 am - Reply
Interested. I got land already. What would be the cost?
- David March 9, 2020 at 9:07 am - Reply
Hi Victor,
Check your email for all the details on this house plan.I wait to hear from you.
Thank you for getting in touch.
-
- Isaac March 9, 2020 at 2:26 pm - Reply
Would like to know how much this exact design would cost?
- David March 11, 2020 at 3:16 pm - Reply
Hi Isaac,
Check your email for all the details on this house plan.Thank you for getting in touch.
-
- Ondieki March 10, 2020 at 5:24 am - Reply
Hi,
Thanks for the design. please provide estimated cost and would it fit on a 50 by 100 plot
- David March 11, 2020 at 1:34 pm - Reply
Hi Ondieki,
I have sent you all the details. Check your email and get in touch.Thanks
-
- Gabriel Ngeno March 17, 2020 at 12:25 pm - Reply
Nice plan David.
Kindly share with me more details, plan cost and estimate cost breakdownThank you
- David March 19, 2020 at 7:30 am - Reply
Hi Gabriel,
I have sent you an email with all the details. You can watch this YouTube video that also gives a very good understanding on this house plan as we as construction cost.https://www.youtube.com/watch?v=9fllI-pIiRI
Take some time and watch our videos. We share a lot of good information that can come in handy for your construction project. Don't forget to subscribe and hit that notification button.
I wait to hear from you.
Thanks
-
- mathew March 21, 2020 at 8:59 am - Reply
Hi david I am interested for I have a land already and was just thinking of a best design of my future home.I will appreciate if you give me a detailed cost to build this exact design but with a balcony in the front.
- Juma March 30, 2020 at 2:36 pm - Reply
Send me detailed emails on this particular plan kindly, prices included.
- David March 31, 2020 at 7:27 am - Reply
Hi Juma,
Check your email for all the details.You can watch this YouTube video that also gives a very good understanding on this house plan as we as construction cost.
https://www.youtube.com/watch?v=9fllI-pIiRIAwaiting your response. Thanks
-
- mathew April 4, 2020 at 7:58 am - Reply
morning David, i am waiting for your feedback,
thanks - George April 4, 2020 at 4:38 pm - Reply
Wish for a plan of massionette 4bd all enquire. Kindly reach me below mail
- David April 7, 2020 at 1:08 pm - Reply
Hi George,
Check your email. i have sent you details and some some sample 4 bedroom house plans for you to look at.I wait for you to response for further engagement.
Thanks
-
- Duncan Lumati April 6, 2020 at 4:47 pm - Reply
i am interested, Can this fit on a 30*60 plot?
please share the details kindly.
- David April 7, 2020 at 12:38 pm - Reply
Hi Duncan,
We can do that for you but we will have to shrink the house down. All the rooms will have to be a little smaller that they are currently.Check your email for all the details.
Thanks
Thanks
- Musembi April 9, 2020 at 12:21 pm - Reply
Hi. Interested.
Kindly send me more details on this plan. Thanks- David April 10, 2020 at 10:21 am - Reply
Hi Musembi,
Check your email for all the details.Thanks for getting in touch.
-
-
- Mutie April 12, 2020 at 2:04 pm - Reply
- Githaka April 14, 2020 at 6:45 pm - Reply
Hi, nice one how much does it cost to build this house and need more details of the plan
- David April 15, 2020 at 7:42 am - Reply
Hi Githaka,
I have sent you more details on this house plan via email.You can watch this YouTube video that also gives a very good understanding on this house plan as we as construction cost.
https://www.youtube.com/watch?v=9fllI-pIiRIRevert back for further discussions.
Thanks
-
- Ken April 15, 2020 at 5:59 am - Reply
Hallo, I'm interested in this plan with a few adjustments. Kindly get back.
- David April 15, 2020 at 7:27 am - Reply
Hi Ken,
This house plan is readily available for purchase and if you need any slight modifications to fit the plan within your needs and budget, we can do that.You can watch this YouTube video that also gives a very good understanding on this house plan as we as construction cost.
https://www.youtube.com/watch?v=9fllI-pIiRICheck your email for more details and revert back.
Thanks
-
- mathew April 15, 2020 at 3:21 pm - Reply
good evening David i hope this finds you well, i have been asking for some information from you and there is no feedback, i don't know want next?
- David April 16, 2020 at 8:25 am - Reply
Hi Mathew,
I sent you an email on the 27th of January 2020. You are the one who has not responded. Check your spam folder.Thanks
- mathew May 8, 2020 at 2:18 pm - Reply
hi David i hope this finds you well, i have checked and i cant see please resend it to mnonduko@gmail.com.
thanks.
-
-
- Paul April 20, 2020 at 1:00 pm - Reply
Can a 3 bedroom burg-lo with a servant quarter fit in the 50*100 plot?
- David April 22, 2020 at 11:22 am - Reply
-
- Zack April 21, 2020 at 7:09 pm - Reply
Hi David, This is very interesting. Need the same scope of 4 bedrooms though not with that type of large windows. And some QS lead on cost for such project will be appreciated.
- David April 22, 2020 at 11:49 am - Reply
Hi Zack,
We can incorporate the changes you want to the windows and add a DSQ. Check your email for all the deetails.Thank you.
-
- NELSON MUSOLO May 2, 2020 at 3:26 pm - Reply
i have a 50 by 100 land and i would like a 4 bedroom masionette just like this one which i can also add a DSQ and leave parking lot for two vehicles and a small garden .
- David May 4, 2020 at 8:04 am - Reply
Hi Nelson,
We can add the DSQ and plan it in such a way that you have some parking space and garden left. Check your email for all the details.I wait for your response.
Thanks
-
- Teobard Mugo May 4, 2020 at 9:57 am - Reply
I am planning to build a 4 bedroom mansion on 1/4 acres in clay soil and about 5 ft to rocks.Assume 154 sqm what would be the cost of the house.I also prefer clay roofing tiles. other is include should i suspended the foundation or excavate.
- David May 5, 2020 at 7:39 am - Reply
Hi Teobard,
First you nail down on the design that you want to construct for a good construction cost quote. As for excavation, it is important to do a site visit for such a decision to be made.
-
- Josephat May 5, 2020 at 8:39 am - Reply
Hello David,
I like this design. I intend to build something like this.
Please share more details.
- David May 5, 2020 at 12:43 pm - Reply
Hi Josephat,
Kindly check your email for all the details on this house plan.Thank you for getting in touch.
-
- Ptah May 5, 2020 at 5:19 pm - Reply
Hi Sir,
Plan to build 4 bedroom maisonette
In 50×90 land which i also intend to do poultry
Kindly advice d cost n plan thanx- David May 6, 2020 at 8:18 am - Reply
Hi Ptah,
We have some house plans created for your kind of land. I think you will have adequate space left for your chicken farming. You just have to be creative in making it all work with little space.
Check the sample plans and get back to us on what you like.Thanks
-
- Peter Kibor Keitany May 5, 2020 at 6:21 pm - Reply
Hi David,
I need more specific big the plan, what is the cost. Considering having the construction in Kajiado county.
- Peter Kibor Keitany May 6, 2020 at 6:52 am - Reply
Hi David,
I need more specific information on the plan, including the cost you will charge.Considering having the construction in Kajiado county.
- David May 6, 2020 at 7:40 am - Reply
Hi Peter,
Check your email for all the details.Thanks
-
- Ernest May 8, 2020 at 10:18 am - Reply
Hi David, would like to know the cost of the 4 bedroom plan, please advice
- David May 12, 2020 at 1:01 pm - Reply
Hi Ernest,
Check your email for all the details on this house plan.Thanks
-
- Eric May 9, 2020 at 7:31 am - Reply
Hi,
Can you share a plan to do a 4 bedroom house with a 2 bedroom dsq with the dsq being bulit first and the massionate later keeping in mind the dsq to the at the back and having ample space at the front on a 50*100.
Thanks- David May 12, 2020 at 11:54 am - Reply
Hi Eric,
Thank you for your inquiry. That can be done. It works very well for those who want to build their houses in phases. That is a custom design. Call us or email us and we will create that design for you. We can also 4 bedroom house plans in our website with DSQ's. Just pick one that you like and we can customize it for you.Thank you for getting in touch.
-
- Kennedy May 9, 2020 at 7:44 pm - Reply
I would like to view this design please
- David May 12, 2020 at 12:21 pm - Reply
Hi Kennedy,
Here is a video that can give you a very good clear picture on this house plan. For more information just call us or email us:Tel: 0721 318614.
Email: support@davidchola.comThanks
-
- Stanley Kimani May 11, 2020 at 6:18 am - Reply
Hello David
This is a good job.
I'm interested in that house. Kindly let me know the cost and details of the house. The size of the plot is 50*100 .Incase you have other designs even for a bungalow,will appreciate.
- David May 12, 2020 at 12:37 pm - Reply
Hi Stanley,
Visit our YouTube channel and website to view more house plans. We have numerous maisonettes and bungalows that you can look at.
https://www.youtube.com/c/AdroitArchitectureCheck your email on how to get this house plan. I have sent you all the details.
Thanks
-
- thomas May 20, 2020 at 8:11 am - Reply
i would love to get a quote for this
- David May 21, 2020 at 8:48 am - Reply
Hi Thomas,
I have sent you an email with all the details on this house plan.I wait to hear from you.
-
- benard May 25, 2020 at 2:23 pm - Reply
Hi David,
Marvelous design!
Really impressed and would wish to get specifics on the plan and total cost of construction.
- David May 29, 2020 at 12:49 pm - Reply
Hi Bernard,
Check your email for all the details on this house plan.Thanks
-
-
Hello David,
I am interested in this plan. Could you kindly email me more details e.g. cost e.t.c.?
- David June 4, 2020 at 8:35 am - Reply
Hi Gitahi,
Check your email for all the details on this house plan.Thanks
-
- George Otieno June 5, 2020 at 8:47 pm - Reply
Wow! This is a great design.
David, how can you help me further? I love this plan, and I would like to adapt it with some modifications to my house in town?
- David June 12, 2020 at 9:37 am - Reply
Hi George,
We can definitely make the modifications you need. Check your email for all the details.I await your response.
Thanks
-
- Aystine June 9, 2020 at 10:15 am - Reply
Hello David,
Impressive house plans you have. I have also read several comments on this thread and am impressed of your answers and tailor made solutions. Am optimistic to One day build. Till then impressive work
- David June 15, 2020 at 9:58 am - Reply
Thank you so much Aystine for your kind comments.
We endevour to do our best at all times. You know where to find us when you are ready to build.
-
- Evans June 13, 2020 at 6:24 pm - Reply
Hallo David,
I have read all comments and must appreciate your work and time to respond.
I am excited about this house. How far can 1.8 take me in terms of establishing this dream?- David June 15, 2020 at 1:59 pm - Reply
Hi Evans,
The Elegant 4 bedroom house plan is 149M2. Currently, the cost of construction is around 35,000 per square meeting, giving this house plan an estimate cost of 5.215M. 1.8M can get you started, and probably done with foundation, ground slab and walling. Maybe a bit of works on the 1st floor slab.
Start with what you have. When you get more cash you keep going. Trust me, the dream will attract the funds you need.If you need our help, just let us know. Thanks for your inquiry.
-
- Jeff June 18, 2020 at 8:37 pm - Reply
I am interested. My plot size is 40 by 60. Can this accommodate 4 bedrooms and leave me space for parking of 2 cars and a small kitchen garden?
- David July 14, 2020 at 12:18 pm - Reply
Hi Jeff,
This house plan is suited for a 40*80 therefore it would not work for the piece of land you have. You would need to pick a smaller design for that land. Check this out:
https://davidchola.com/house-plans/the-azure-3-bedroom-maisonette-house-plan/This size of house plan is what you should be thinking about. The overall look can always change of course so focus more on the floor plans.
Thanks
-
- Irene June 19, 2020 at 10:28 am - Reply
Can this fit on 40*60 and the total cos t of construction
- David July 9, 2020 at 1:04 pm - Reply
Hi Irene,
I hope you got my email on this house plan. It would need some adjustments to fit in a 40*60.I await your response. Thanks
-
- James June 20, 2020 at 5:18 pm - Reply
Hi David
Am interested please- David July 8, 2020 at 11:44 am - Reply
Hi James,
Check your email for all the details on this house plan.Thanks
- David July 8, 2020 at 12:38 pm - Reply
Hi James,
Check your email address for all the details on this house plan.I wait to hear from you for further discussions.
Thanks
-
- Irene June 24, 2020 at 9:34 am - Reply
Is the plan viable on a 40*60 piece of land.. Kindly share specifics on the costs for guidance
- David July 8, 2020 at 10:39 am - Reply
Hi Irene,
I hope you got my email on the Elegant 4 Bedroom House Plan.Awaiting your response.
Thanks
-
- Dan June 30, 2020 at 3:07 pm - Reply
I would like some preview of flat roof houses with the construction cost estimate sent to my email
- David July 1, 2020 at 6:55 am - Reply
-
- Evans July 1, 2020 at 11:13 am - Reply
Hello. I would be interested in knowing the room sizes and budgeting for such a plan
- David July 1, 2020 at 3:11 pm - Reply
Hi Evans,
The total area of the house plan is 149M2 with a plinth dimension of 11M by 10.1M. You can watch our YouTube video on this house to get an idea on the room sizes. I have sent you an email with more details.
https://www.youtube.com/watch?v=9fllI-pIiRI&t=19sThank you for getting in touch.
-
- David July 2, 2020 at 9:17 am - Reply
Interested in this. Kindly share more details.
- David July 2, 2020 at 1:24 pm - Reply
Hi David,
I have sent you all the details on this house plan.Awaiting your response, thanks!
-
- Dorothy Lukoye July 2, 2020 at 9:48 pm - Reply
Hi David,
This is what I have been looking for an ideal home at shags.
Kindly advice on the cost and also the new technology thus building with panels.Awaiting your response,
Thank you.
- David July 20, 2020 at 10:15 am - Reply
Hi Dorothy,
Using panels will save you on time but it tends to be more expensive than using stones. Do get an exact quote, you need to liaise with a panel manufacturing company for a quote.Check your email for more details.
Thanks
-
- irene July 3, 2020 at 9:11 am - Reply
Kindly share finer details on this plan
- David July 6, 2020 at 1:18 pm - Reply
Hi Irene,
Check your email for all the details.Thanks
-
- samson keyah July 10, 2020 at 8:58 am - Reply
I love the design, Could I kindly know its quotations?
A second option has minor modifications. I would also love to have a basement for the study room and a music studio. Kindly get in touch.
- David July 14, 2020 at 11:15 am - Reply
Hi Samson,
We can make the necessary adjustments to this house plan to include a basement study room and music studio. I have sent you all the details via email.I await your response. Thanks
-
- Carole July 12, 2020 at 4:44 am - Reply
Hi David
I am interested in this house design. How much will be total building cost- David July 13, 2020 at 7:42 am - Reply
Hi Carole,
Please check your email for all the details on this house plan.Thank you for getting in touch.
-
- Kevin July 16, 2020 at 4:31 pm - Reply
Hey,
My name is Kevin Mwei and I am interested in this plan.- David July 20, 2020 at 9:55 am - Reply
Hi Kevin,
Check your email for all the details.Thanks
-
- Jane July 17, 2020 at 7:58 am - Reply
Beautiful design. How much does it cost?
- David July 20, 2020 at 10:09 am - Reply
Hi Jane,
Check your email for all the details.Thanks
-
- Edwin July 17, 2020 at 5:18 pm - Reply
I love it 👏👏👏. How do you calculate plinth area fir a mansionette?
- David July 20, 2020 at 10:10 am - Reply
Hi Edwin,
The plinth area is simply the land on which the house sits on. The foot print of the house.
-
- Jane July 21, 2020 at 6:51 pm - Reply
Hi David,
Can the design fit on a 40*60 size of land. I understand the design for the above is for a 149M2 . How many meter cubed would the same design fit on this size of land and what's the cost?
Thanks in advance.
- Jane July 21, 2020 at 7:08 pm - Reply
Hi David,
Can this design fit on a 40*60 size of land? I understand this design is for 149m2 size. How many meter cubed for the same design would fit on 40*60 size and what;s the cost?
Thanks in advance
- David July 24, 2020 at 9:20 am - Reply
Hi Jane,
The design can fit on a 40*60 but you will be left with minimal space all around. The total area will remain the same.Check your email for all the details.
Thanks
-
- Peter July 25, 2020 at 7:50 am - Reply
Hey this is a nice design, kindly share the details especially costs
- David August 12, 2020 at 11:09 am - Reply
Hi Peter,
I hope you got my email on the Elegant house Plan.Waiting to hear from you.
Thanks.
-
-
Kindly what is the cost of architectural designs, structural drawings & BoQs for this house plan
- David July 30, 2020 at 9:01 am - Reply
Hi Peter,
I sent you an email with all the details on this house plan.Get back for further discussions.
Thanks
-
- Papi July 29, 2020 at 2:21 pm - Reply
Hey David,
I thank the Lord for the tremendous work you are doing. I am interested in this house plan and would love to know how much it would cost to buy the plans. And the architectural works. I have a 50 by 100 land and i would like a 4 bedroom masonette just like this one which i can also add a DSQ and leave parking lot for two vehicles and a small garden. Please advise the cost of the plan, approval costs by the county government(kajiado), the approximate cost up to completion. Can I use the inter-locking blocks to do this project or the bricks?Papi
- Papi July 30, 2020 at 4:28 pm - Reply
Dear David,
I sent you an email yesterday and no reply. Thank you for checking.
Regards,
Papi
- David August 3, 2020 at 1:59 pm - Reply
Hi Papi,
Check your email and get in touch.Thanks
-
- Papi July 30, 2020 at 5:58 pm - Reply
Dear David,
Dear David,
I thank God for the good work you are doing. It is a nice plan. kindly if you don't mind send me the breakdown for architectural and structural costs and any other costs for this 4 bedroom plan plus a small extension room (max 15 people) at the basement for prayers DSQ in a 50*100 land in Kijiado.. The master bedroom has to have a balcony in frontRegards,
Papi
- David August 3, 2020 at 2:15 pm - Reply
Check your email for all the details.
Thanks
-
- Kelvin July 30, 2020 at 8:55 pm - Reply
Hello David I have a plot that's 50×100 and I want to do a 4 bedroomed bungalow with 2 rooms ensuite and 2 sharing any designs that you can share and also costings
Thank you- David September 14, 2020 at 9:24 am - Reply
Hi Kelvin,
Check your email for all the details on 4 bedroom bungalows. I have sent you some sample plans.Thanks
-
- James August 2, 2020 at 9:05 am - Reply
Please share with me more information on the plan and total cost of building the house. Also advice on how it can be well built in a 40*90 piece of land and remain with a little space for a small kitchen garden.
Thanks- David September 14, 2020 at 9:14 am - Reply
Hi James,
I hope you got our email on this house plan. We can definitely customize it for your piece of land to ensure it fits well and leaves enough room for you kitchen garden.Respond to my email for further engagement.
-
- Peter August 3, 2020 at 8:57 am - Reply
Hi David, what are the dimensions of the house above
- David August 12, 2020 at 10:18 am - Reply
Hi Peter,
The total size of the house is 149M2, with a ground floor area of 84 M2 and an upper floor area of 65 M2.The overall plinth dimensions is 11 meters by 10.1 meters.
-
- Jackson August 3, 2020 at 1:01 pm - Reply
lovely house. can 4m complete such a project?
- David August 12, 2020 at 10:05 am - Reply
Hi Jackson,
The standard cost of building currently is about 35,000 per square meter, according to the latest published rated from the Institute of Quantity Surveyors of Kenya, depending on finishes and location of the project. This house plan is a total of 149M2, it would cost you about 5.215M. Keep in mind there are many factors that affect the cost of construction and the rate given is pretty comprehensive. The location of the project will also affect the cost of construction.You will need to rethink your budget or go for a simpler plan, preferably a bungalow.
-
-
Hi David. I sent you a text but you haven't responded to my query. I want to be furnished with the cost details of this Elegant 4 bedroom house plan
- David August 12, 2020 at 7:51 am - Reply
Hi James,
Check your email for all the details on this house plan.Thanks
-
- Erick August 15, 2020 at 6:52 am - Reply
Hello David am in terested with the plan.. I would like also to know the total quotation to complete the house.. Thank you
- David September 10, 2020 at 10:31 am - Reply
Hi Erick,
Check your email for all the details.Thanks
-
-
Hi Davi,
Kindly share the plan for a 4 bedroom maisonette above- David September 9, 2020 at 8:34 am - Reply
-
- vic August 20, 2020 at 5:30 pm - Reply
Hi David,
I am intrested in this design for a eighth acre land.But with a nice designed balcony
- David August 21, 2020 at 9:48 am - Reply
Hi Vic,
Check your email for all the details on the Elegant 4 bedroom house plan.Thanks
-
- Brian Ayub August 23, 2020 at 9:54 pm - Reply
Hi David I am interested for I have a land already and was just thinking of a best design of my future home.I will appreciate if you give me a detailed cost to build this exact design but with a balcony.
- David September 8, 2020 at 12:20 pm - Reply
Hi Brian,
Check your email for all the details requested. We can definitely include a balcony as we customize the design for you.Thanks for reaching out.
-
- Patrick August 24, 2020 at 6:18 am - Reply
Hi David, I would want to build a 4 bedroom modern bungalow with a budget of 2m,do you have a plan that would fit in and how much does it cost
- David August 24, 2020 at 12:49 pm - Reply
Hi Patrick,
A modern 4 bedroom bungalow would be about 150M2. To get a modern look, you need to budget 36,000-40,000 shillings per square meter construction cost. That gives you a construction cost of approximately 5.4M-6M.
You need to up your budget or reconsider what you want. 2M is not a bad amount of money to start your construction project, but it will definitely not take you to completion for what you want.
-
- Purity August 26, 2020 at 2:22 pm - Reply
HI David, would you please advice on the cost of a five bedroom maisonette on a 1/4 land and kindly share some of the best modern designs.
- David September 1, 2020 at 11:36 am - Reply
Hi Purity,
Since we have so many plans, please see more on our YouTube channel as well as our website.
http://davidchola.com/category/house-plans/I have share a few more details via email. Respond so that we can engage further.
Thanks
-
- Keneth September 1, 2020 at 8:31 am - Reply
Hi David, can I get this house plan and the estimated cost please?
- David September 1, 2020 at 11:21 am - Reply
Hi Keneth,
Check your email for all the details on this house plan.Thanks for getting in touch.
-
- Jackie September 4, 2020 at 4:26 pm - Reply
Hi, this is a beautiful plan, how much will this cost me. Could it be modified to have a study room?
- David September 8, 2020 at 8:59 am - Reply
Hi Jackie,
All details sent to your emails. I await your response.Thanks
-
- Binzi September 9, 2020 at 11:28 am - Reply
hello david
can this fit in a 40×50 plot or can you squeeze to fit
Whats your cost for all drawings
- David September 11, 2020 at 1:24 pm - Reply
Hi Binzi,
As the house plan is, yes it can fit into a 40*50 but you will have very little room left around. If that is ok for you, then it can work. We can customize the plan to work better on a 40*50. The house plan will be a bit smaller but better suited for your land.Check your email for all the details.
Thanks
-
- muiruri Kinuthia September 10, 2020 at 9:59 am - Reply
Hi David Im very interested…. how much would it cost me for such? Also what other designs do you have for a 4 bedroom house on a 50 by 100 plot of land? Si lazima plans zote ziwe maisonette.
Good Job tho- David September 11, 2020 at 1:17 pm - Reply
Check your email for all the details.
Thanks
-
- Dennis Joel September 17, 2020 at 7:07 pm - Reply
Hi David
How much does it cost to build this in Kakamega if the land is mine.Am fully satisfied by this plan- David September 23, 2020 at 10:35 am - Reply
Hi Dennis,
All details sent to your email.Thank you for reaching out.
-
- george September 18, 2020 at 9:34 am - Reply
Hello, I am interested to implement this on a 50×100 plot in Nairobi. Kindly send me the cost and the plans.
I would like to modify it a bit to have the laundry room- David September 29, 2020 at 12:28 pm - Reply
Hi George,
We can make slight modifications as you wish. Check your email for all the details.Thanks
-
- Betty K Muraga September 28, 2020 at 11:24 am - Reply
Hi. Am Betty. Been searching for a design of 4 bedroom house to fit on 40 by 60 plot. Most probably a maisonette. Kindly send me more designs and cost.
- David September 29, 2020 at 9:57 am - Reply
-
- geoffrey October 12, 2020 at 5:56 pm - Reply
Hello. I really like the design so what will be the cost if you adjust it to 3 bedroom?
- David October 15, 2020 at 7:48 am - Reply
Hi Geoffrey,
We can definitely give you one that has been adjusted. Check your email for all the details.Thanks
-
- Omurwa Michael October 13, 2020 at 9:23 am - Reply
Hello David,
Am interested in this house plan and any other 4br plans. Kindly advice
- David October 14, 2020 at 7:48 am - Reply
Hi Michael,
I have sent you some sample house plans that you can consider. Check your email.Thanks
-
- Remmy October 22, 2020 at 6:34 pm - Reply
Hi David,
How far can I build the elegant 4bedroom
massionate with a budget of 3.5M ?
Kindly send me detailed information on the same..What is the total cost of Bqs,approvals etc.
I would like to build the design on 50 by 100 plot.- David October 23, 2020 at 7:31 am - Reply
Hi Remmmy,
Check your inbox for all the details.Thank you for getting in touch.
-
- Remmy October 22, 2020 at 6:39 pm - Reply
David,
Also What is the cost of building 4bedroomed bungalow vis a vis cost of a 4bedroomed massionate on a 59 by 100 land ? I would like to compare the two to make informed choice. - Fano October 27, 2020 at 9:41 pm - Reply
Dear David,
Nice work! Would want a 4 bedroom massionate, with a spacious lounge, dinning, kitchen, family room and study room. Preferably 150- 160 m2.
Took a photo of some superstructure(kwa umbali) that I can gladly share with you for architectural and structural plan and est BoQ.
- David October 28, 2020 at 11:10 am - Reply
Hi Fano,
I have sent you an email. Please respond so that we can discuss your project further.Thanks
-
- Godfrey November 2, 2020 at 11:25 pm - Reply
Hi David,
Fantastic architectural work there! Kindly share some more details (costing, time to complete building etc) on this and other 4-5 bedroom mansionettes.
- David November 4, 2020 at 8:47 am - Reply
Hi Godfrey,
Thank you for your kind comments. I have sent you an email with some sample plans as well as cost breakdowns.Respond for further engagement.
Thanks
-
- BENEDICT LEMAYIAN November 13, 2020 at 9:57 am - Reply
Hi
wonderful house plans I see, am interested in four-bedroom maisonette please and how much is the cost and if you have more designs, please- David November 16, 2020 at 7:33 am - Reply
Hi Benedict,
Check your email for all the details. I have shared several house plan for you to look at. Visit our YouTube channel as well for more video.http://www.youtube.com/c/AdroitArchitecture
Respond for further engagement.
Thanks
-
- Mike November 22, 2020 at 10:52 am - Reply
Hi David, please tell me more about this plan!
- David November 23, 2020 at 7:05 am - Reply
Hi Mike,
Check your email for all the details.Thanks
-
- Charity wachira November 22, 2020 at 1:00 pm - Reply
Hi, David I feel like I have found just what I have been looking for. It has been my dream to have a 4 b/r house in the village. Small adjustment though (tell me if its possible) to have every b/r with its bathroom and one shared on the ground floor.and a balcony for the master b/r. Please if I can get more details on the cost of the plan and bq I would appreciate. NB its to be constructed in the village (nyeri) using the ndarugo blocks. Does it need approval?
- David November 23, 2020 at 7:21 am - Reply
Hi Charity,
Check your email for all the details.I wait to hear from you. Thanks.
-
- John November 23, 2020 at 8:33 pm - Reply
Hello
I am interested in the details of this design. How much is the design ? The cost of complete building without finish and with finishing, etc. All the necessary details.
- David November 25, 2020 at 10:54 am - Reply
Hi John,
The structure of the building will take about 60% of the total budget with the remaining 40% going to finishes.Check your email for all the details and revert back for further discussions.
Thank you for getting in touch.
-
- Denis November 25, 2020 at 12:37 pm - Reply
Hi David, Kindly send me the total cost for such a maisonette. That is, materials required and the cost of each
- David November 25, 2020 at 1:37 pm - Reply
Hi Dennis,
Check your email for all the details.Thanks
-
- Francis November 30, 2020 at 2:06 pm - Reply
Hi David, please share more details for The Vogue Contemporary 4 Bedroom House Plan the cost of the plan and where i build in phases doing all the supervisor and sourcing the martial
- David December 1, 2020 at 10:01 am - Reply
Hi Francis,
You can definitely build in phases. What you are talking about is a labor contract. Check your email for all the details.Thanks.
-
- Pearl December 2, 2020 at 2:24 pm - Reply
Hello,
Is it possible to extend a two bed flat sitting on a 40 by 12 to a masionette with 4/5bed in 40 by 80 plot size with compound and garage space left
- David January 11, 2021 at 6:39 am - Reply
Hi Pearl,
This kind of project needs more discussion as well as a site visit. A lot depends on what the current structure is like. Once we know the current then we can know if it is possible.Revert back on email for us to plan a site visit.
Thanks
-
- Ratesh December 8, 2020 at 11:37 am - Reply
Please share details. can put this up in shagz or kajiado
- David December 17, 2020 at 7:47 am - Reply
Hi Ratemo,
Check your email for all the details.Thanks
-
- Tony December 26, 2020 at 5:10 am - Reply
I need this plan to put in Shagz
- David January 6, 2021 at 1:08 pm - Reply
Hi Tony,
Check your email for all the details.Awaiting your response.
Thanks
-
- Boniface January 12, 2021 at 9:20 am - Reply
- David February 17, 2021 at 1:31 pm - Reply
-
- Stephen January 14, 2021 at 2:54 pm - Reply
Hallo,
Please share more details about the cost of putting up this house.
Thanks
- David January 22, 2021 at 8:55 am - Reply
Hi Stephen,
The standard cost of building currently is about 36,000 per square meter, according to the latest published rated from the Institute of Quantity Surveyors of Kenya, depending on finishes and location of the project. This house plan is a total of 149M2. It would cost you about 5.364M using this rate. Keep in mind there are many factors that affect the cost of construction and the rate given is pretty comprehensive. The location of the project will also affect the cost of construction.Thanks for asking.
-
- Stephen January 14, 2021 at 3:00 pm - Reply
Hallo,
Please share more 4 bedroom plans . Needed for an eighth piece of land
Thanks
- David January 22, 2021 at 7:59 am - Reply
Hi Stephen,
Check your email for some sample 4 bedroom house plans and all the details on how to get one.I wait to hear from you.
Thanks
-
- Eric January 15, 2021 at 9:19 pm - Reply
Hallo i need this plan.please send me the details
- David January 22, 2021 at 7:53 am - Reply
Hi Eric,
I have sent you an email with all the details on this house plan.Get in touch.
-
- John January 25, 2021 at 11:45 am - Reply
hi. Please confirm how much you charge for a house plan
- Rosemary February 17, 2021 at 11:52 am - Reply
Hi, i really like the design, am in Nakuru and planning on building a such a budget house. Can the design include a study area and maybe increase the square meters to about 170sqm? how much would that cost maintaining other features.
- David February 18, 2021 at 7:36 am - Reply
Hi Rosemary,
Yes, we can add a study and expand the house to 170M2. Check your email for all the details.Thanks
-
- Philip Mwamburi February 18, 2021 at 12:57 pm - Reply
HI David i have a 50 x 100 plot in Kitengela planning to put a 4 bedroom massionate.kindly share some plans you have and approx how much it will cost me.
Regards,
Mwamburi- David February 19, 2021 at 7:01 am - Reply
-
- Andrew March 1, 2021 at 1:54 pm - Reply
I like the simplicity of this plan. Space is well utilized. How much does this go for?
- David March 3, 2021 at 11:30 am - Reply
Hi Andrew,
Check your email for all the details.Thanks
-
- Brian sang March 7, 2021 at 9:54 am - Reply
How much will it cost if the land is mine?
- David March 8, 2021 at 9:29 am - Reply
Hi Brian,
Check your email for all the details on this house plan.Thanks
-
- Dennis March 21, 2021 at 4:20 pm - Reply
Hi David can I get a detailed plan for this house I like it…
- David April 15, 2021 at 7:06 am - Reply
hi Dennis,
I hope you got our email with all the details on this house plan.Thanks
-
- lewis March 29, 2021 at 3:26 pm - Reply
hello david. in your design. can you include a farming area.
- David April 14, 2021 at 1:45 pm - Reply
Hi Lewis,
You can include any area you want. We always customize our designs to fit the needs and budget of the client. We can isolate space for your farming in your land which you can design anyway you want.I hope that helps.
Thanks
-
- Korir April 4, 2021 at 5:43 pm - Reply
Nice plan. I am interested, can a double car port be incorporated?
- David April 6, 2021 at 1:03 pm - Reply
Hi Korir,
Yes we can add a double car port. Check your email for all the details.Thanks
-
- Tonny April 26, 2021 at 1:35 pm - Reply
Hi David I'm interested in this.
- David April 27, 2021 at 8:23 am - Reply
Hi Tonny,
Check your email for all the details on this house plan.Thanks
-
- Munuve May 22, 2021 at 2:07 pm - Reply
Hi, interested especially the cost and bq
- David May 26, 2021 at 1:13 pm - Reply
Hi Munuve,
Check your email for all your details.Thanks
-
- Solomon June 8, 2021 at 6:09 am - Reply
Hello I need a summary of a 4bedroom masionette
- David June 8, 2021 at 9:16 am - Reply
Hi Solomon,
Check your email. I have shared some sample 4 bedroom maisonettes for you to look at as well as details on how to get our plan.Get in touch, thanks.
-
- Jonathan June 13, 2021 at 6:38 pm - Reply
I am interested in this David. Please share with me on how to get the designs and drawings and the material schedule
- David June 14, 2021 at 12:48 pm - Reply
Hi Jonathan,
Check your email for all the details on this house plan. Get in touch for further engagement.Thanks
-
- Austin June 21, 2021 at 9:37 pm - Reply
Hi can you send me the plan and all the cost in my email please. I think I love it.
- David September 8, 2021 at 10:11 am - Reply
Hi Austin,
Check your email for all the details.Thanks
-
- Gerishon July 15, 2021 at 12:12 pm - Reply
Good design. The top floor could be improved to create more space for the two small bedrooms. Interested.
- David August 11, 2021 at 12:12 pm - Reply
Hi Gerishon,
All our plans can be customized. We can work on the size of the bedrooms if you want them bigger. Check your email and get in touch.Thanks
-
- Robert July 18, 2021 at 1:06 pm - Reply
How much can this cost, I need a plan
- David August 10, 2021 at 7:55 am - Reply
Hi Robert,
Check your email for all the details.Thanks
-
- Dmaina August 10, 2021 at 12:48 pm - Reply
- David August 11, 2021 at 11:09 am - Reply
Hi Maina,
Check your email for all the details on this house plan.Thanks
-
- ALEX August 24, 2021 at 10:25 am - Reply
Interested in this house plan. What is the cost.
- David August 30, 2021 at 12:14 pm - Reply
Hi Alex,
Check your email for all the details on this house plan.Thank you.
-
- Harison Kariithi Macharia September 2, 2021 at 6:43 pm - Reply
- David September 7, 2021 at 1:35 pm - Reply
Hi Harrison,
All details have been shared to your email.Get in touch.
Thanks
-
- Nyaga September 3, 2021 at 11:55 am - Reply
Am interested in the house plan shown on this page. How do I get details?
- David September 7, 2021 at 1:19 pm - Reply
Hi Nyaga,
Check your email for all the details on this house plan.Thank you for getting in touch.
-
- BENJAMIN MOGIRE September 3, 2021 at 4:59 pm - Reply
Hi David,
I'm interested in the details for this design.- David September 7, 2021 at 1:15 pm - Reply
Hi Benjamin,
Check your email for all the details.Thanks
-
- cecilia September 7, 2021 at 9:07 am - Reply
HI,
How much would it cost If I have a land?- David September 7, 2021 at 1:01 pm - Reply
Hi Cecilia,
Check your email for all the details on this house plan.Thanks
-
- Barry September 10, 2021 at 2:10 pm - Reply
Hi David,
This plan has really excited me. kindly share more details on this design for review.
plan on 1/8 acre plot in Kamulu, include study area upstairs. No need for dhobi area.- David September 14, 2021 at 9:17 am - Reply
Hi Barry,
Email sent.
Let's engage more on email. We can adjust the design for you as per your needs and budget.Thanks
-
- Barry September 13, 2021 at 12:57 pm - Reply
Hi David,
This house plan is amzing. i would love to get further details on it.
Please email- David September 14, 2021 at 8:46 am - Reply
-
- Barry September 13, 2021 at 12:58 pm - Reply
Hi David,
This house plan is amazing. i would love to get further details on it.
Please email- David September 14, 2021 at 8:45 am - Reply
Thank you Barry for the kind comment.
Check your email for all the details on this house plan.
Thanks
-
- Daniel September 24, 2021 at 11:17 am - Reply
Interested! This house design is amazing. Can it be redesigned to 3 bed room, 2 downstairs, and a spacious master upstairs with a balcony (open where one can bask in the sun).
- David November 2, 2021 at 8:19 am - Reply
Hi Daniel,
Definitely, this plan can be customized as you have described. I hope you got my email. Kindly respond for further engagement.Thanks
-
-
The plan is amazing. I need a 3 bedroom house. 2 bed room in ground floor and a master brm with an open balcony in upper floor. is it possible?
- daniel kinyuira September 29, 2021 at 5:13 am - Reply
Hi, the plan is amazing. i need a 3 bedroom farm house. 2 bedroom in ground and a master with an open balcony in upper floor.
- David October 19, 2021 at 7:13 am - Reply
Hi Daniel,
I hope you received my email. Kindly revert for further discussions. We can definitely customize this house plan for you.Thanks
-
- James Abuga November 20, 2021 at 6:56 pm - Reply
Hello need four bedroom Manssion. Ground floor should have 1 ensuite bedroom,study room,Prayer rooom,Open kichen system and i carport,laundry area.
Upstairs master bedroom with dressing rooom,and a family lounge with another bedroom and balcon- David November 30, 2021 at 2:05 pm - Reply
Hi James,
Check your email and get in touch.Thanks
-
This site uses Akismet to reduce spam. Learn how your comment data is processed.
4 Bedroom Maisonette House Plans
Source: http://davidchola.com/house-plans/elegant-4-bedroom-maisonette/
0 Komentar